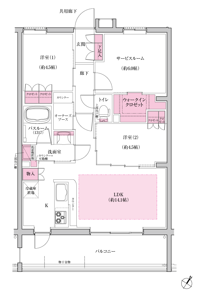
F type
2LDK+S+WIC+O
- 専有面積/65.33㎡(約19.76坪)
- バルコニー面積/12.16㎡(約3.67坪)

※WIC:ウォークインクロゼット、O:オーナーズブース、SC:シューズクローク

※WIC:ウォークインクロゼット、O:オーナーズブース、SC:シューズクローク
2026年4月28日(火)~2026年5月11日(月)の期間は休まず営業しております。
◯キャンペーン主催:株式会社ブリス。◯新規来場キャンペーン:事前にご予約の上、はじめてマイホームをご購入される方で、お買替の方は除かれます。2名以上で本物件に初めてご来場いただき、アンケートにもれなくお答えいただいた方に限ります。数に限りがございます。無くなり次第終了とさせていただきます。1世帯1回限りとさせていただきます。◯再来場&事前審査キャンペーン:本プレゼントは住宅ローンの事前審査申込をされた方のみ対象とさせて頂きます。事前審査の申込には、ご本人様の確認書類や収入の分かる書類、お認印等が必要になります。本キャンペーンは、1家族様1回限りとさせて頂きます。◯本キャンペーンのお問い合わせは株式会社ブリスとなります。商品券等発行企業にお問合せいただいてもご対応できません。◯AmazonはAmazon.com,Inc.またはその関連会社の商標です。本キャンペーンについてのお問い合わせはAmazonではお受けしておりません。株式会社ブリスまでお願いいたします。◯虚偽の内容記載など弊社がプレゼント不相応と判断した際にはお渡しを拒否させていただくこともございます。※キャンペーンは同様の内容で継続をする場合がございます。
本広告を行い取引を開始するまでは、契約・予約受付・申し込み順位保全の確保に係わる行為は一切できませんので、予めご了承ください。〈2026年5月上旬販売開始予定〉